top of page

Mable
Starting Price: $208,900
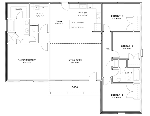
The Mable is a 4 bedroom, 2 bath single-floor home with an open floor plan. The kitchen features a large 3'-6" x 6'-0" island with snackbar. The master suite features a large walk-in closet, double vanities, separate tub and shower, and separate toilet closet.

Living Area: 1823 sq. ft.
Porch Area: 112 sq. ft.
Total Area: 1935 sq. ft.
Plan Details:
Bedrooms: 4
Bathrooms: 2
Total Width: 53'-2"
Total Depth: 43'-0"
Living Area: 1823 sq. ft.
Porch Area: 112 sq. ft.
Total Area: 1935 sq. ft.
Plan Features:
-
Foundation
-
4" thick
-
3000 PSI
-
-
Exterior
-
Front - Brick/HardiePlank Lap Siding
-
Rear - Vinyl Siding
-
-
1/2" Drywall finished with orange peel texture
-
Insulation
-
Spray-foam in wall​
-
R-30 fiberglass in attic
-
-
9' ceilings​ throughout
-
All paint-grade cabinets and trim
-
Trim - Windows, Doors, and Baseboards
-
One piece fiberglass tub & shower units
-
Stainless steel appliances
-
Stove/oven range​
-
Dishwasher
-
Hood Vent
-
-
Polished Chrome Fixtures
-
Lighting
-
Ceiling fan with light kit in living room and all bedrooms.​
-
Chandelier in Dining
-
Hanging light in Foyer
-
Pendant lights in Kitchen
-
Heater/Vent Light and Vanity Light in Bathrooms
-
-
Granite countertops​ (Kitchen & Bath)
-
1 Year Total Home Warranty
bottom of page
.png)
.png)